Montažna hiša Nika

Nika
Delite z ostalimi:
Fotografija:

"Pritlična montažna hiša Nika je glede na želje družine prilagojena hiša Sonja ali Mirjana."

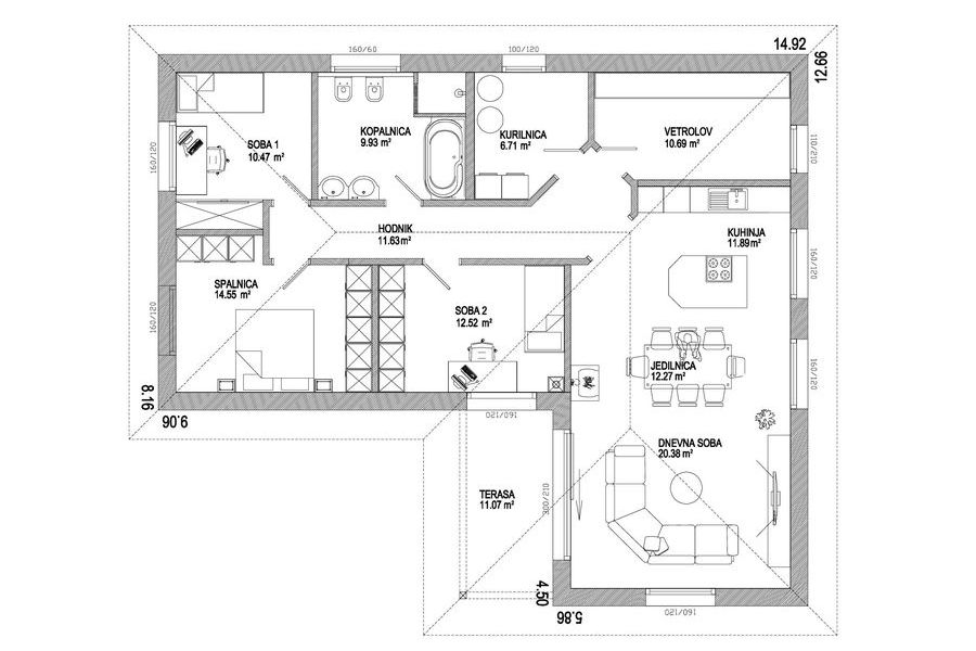
V pritličju so funkcionalno razvrščeni vsi prostori za udobno bivanje štiričlanske družine: spalnica, dve otroški sobi, kopalnica, hodnik, kurilnica (kjer je prostor tudi za pralnico), v en velik prostor pa so povezane kuhinja, jedilnica in dnevna soba, ki ima izhod na pokrito teraso.
Vetrolov je v tem primeru nekoliko večji, saj je pripravljen prostor za stopnišče v primeru, da se pojavi želja po več prostora in se lahko mansarda naknadno obdela, saj je zmontiran pohoden strop.
  • Tip hiše
    Pritlična
  • Skupna bivalna površina
    121,04 m2
  • Skupna površina pritličja
    121,04 m2
  • Skupna površina nadstropja
    m2
  • Skupna površina mansarde
    m2
  • Skupna površina dodatnih prostorov
    11,07 m2
  • Zunanje dimenzije
    14,92m X 12,66m
  • Konstrukcija sten
    Standard
  • Tip strehe
    štirikapnica
  • Naklon strehe
    38,00
    °
Tloris

Pritličje

Dnevni prostor:  20,38 m2
Jedilnica: 12,27 m2 
Kuhinja:
11,89 m2
Spalnica: 14,55 m2
Soba 1:  10,47 m2
Soba 2:  12,52 m2
Kopalnica:  9,93 m2
Kurilnica:  6,71 m2
Hodnik:  11,63 m2
Vetrolov:  10,69 m2


20,38 m2Kuhinja jedilnico:
23 m2Soba:23 m2
Skupaj: 121,04 m2

Nadstropje

Skupaj: m2

Mansarda

Skupaj: m2

Dodatni prostori

Pokrita terasa: 11,07 m2
Skupaj: 11,07 m2

Konfigurator

Oglejte si tudi...

Montažne hiše Javušnik

Vaš sanjski dom.

Brezplačen katalog

Zagotovite si svoj izvod kataloga montažnih hiš Javušnik.