Domov
|
O nas
|
Kontakt
|
Reference
|
Povpraševanje
+386 (0)2 87 64 489
[email protected]
navigacija
Javusnik.si
Montažne hiše
Mansardne montažne hiše
Pritlične montažne hiše
Nadstropne montažne hiše
Brunarice
Ostali objekti
Konstrukcija
Konstrukcija Standard
Konstrukcija Javušnik
Konstrukcija Bruna
Konstrukcija Individual
Gradnja
Kako do montažne hiše Javušnik
Izdelava montažnih hiš Javušnik
Faze gradnje
Prednosti
Zakaj montažne hiše Javušnik
Prednosti lesene gradnje
O podjetju
Zakaj izbrati nas
Lokacija
Povpraševanje
Kontakti
Nahajate se:
Montažne hiše
>
Mansardne montažne hiše
Montažna hiša
Pia
Delite z ostalimi:
Pošljite povpraševanje
Fotografija:
Janez Marolt
"Nizkoenergijska montažna hiša Pia primerna za vsako okolje in vse starostne skupine."
Hiša Pia z modernim zunanjim videzom in velikimi okni dobro osvetli funkcionalno razporejene notranje prostore. Okna pri vhodu zagotavljajo dnevno svetlobo stopnišču.
Natisnite letak hiše
Pia
Zahtevajte informativno ponudbo
Konstrukcija
Tip hiše
Mansardna
Skupna bivalna površina
133,60 m
2
Skupna površina pritličja
71,28 m
2
Skupna površina nadstropja
m
2
Skupna površina mansarde
62,32 m
2
Skupna površina dodatnih prostorov
42,39 m
2
Zunanje dimenzije
10,50m X 9,00m
Konstrukcija sten
Javušnik
Tip strehe
dvokapnica
Naklon strehe
40,00
°
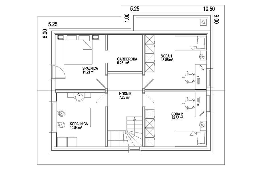
Tloris
Pritličje
Dnevni prostor:
23,39 m
2
Jedilnica:
8,81 m
2
Kuhinja:
12,91 m
2
Soba:
10,90 m
2
Kopalnica:
4,84 m
2
Utility:
2,96 m
2
Vetrolov s stopniščem:
7,47 m
2
Skupaj:
71,28 m
2
Nadstropje
Skupaj:
m
2
Mansarda
Spalnica:
11,21 m
2
Garderoba:
5,25 m
2
Soba 1:
13,88 m
2
Soba 2:
13,88 m
2
Kopalnica:
10,48 m
2
Hodnik:
7,26 m
2
Skupaj:
62,32 m
2
Dodatni prostori
Pokriti vhod:
4,20 m
2
Terasa:
38,19 m
2
Skupaj:
42,39 m
2
Javusnik.si
Montažne hiše
Mansardne montažne hiše
Pritlične montažne hiše
Nadstropne montažne hiše
Brunarice
Ostali objekti
Konstrukcija
Gradnja
Prednosti
O podjetju
Konfigurator
Bivalna površina
Najdi hišo
Najdi hišo
Oglejte si tudi...
Joža
Nika
Kim
Adaptacija hiše z montažno mansardo
Vodnikovi verzi
Era
Nevenka
Amadeja
Darja
Lu
Montažne hiše Javušnik
Vaš sanjski dom.
https://www.iapac.to/
patek phillippe replica watch
Brezplačen katalog
Zagotovite si svoj izvod kataloga montažnih hiš Javušnik.