Domov
|
O nas
|
Kontakt
|
Reference
|
Povpraševanje
+386 (0)2 87 64 489
[email protected]
navigacija
Javusnik.si
Montažne hiše
Mansardne montažne hiše
Pritlične montažne hiše
Nadstropne montažne hiše
Brunarice
Ostali objekti
Konstrukcija
Konstrukcija Standard
Konstrukcija Javušnik
Konstrukcija Bruna
Konstrukcija Individual
Gradnja
Kako do montažne hiše Javušnik
Izdelava montažnih hiš Javušnik
Faze gradnje
Prednosti
Zakaj montažne hiše Javušnik
Prednosti lesene gradnje
O podjetju
Zakaj izbrati nas
Lokacija
Povpraševanje
Kontakti
Nahajate se:
Montažne hiše
>
Mansardne montažne hiše
Montažna hiša
Taja
Delite z ostalimi:
Pošljite povpraševanje
Fotografija:
"Klasična montažna hiša z modernimi zunanjimi detajli, doda hiši poseben videz."
Montažna hiša Taja s funkcionalnim tlorisom omogoča montažna udobno bivanje za vso družino.
Možna je prilagoditev velikosti in postavitve sten Montažne hiše Taja, z ohranitvijo samega videza.
Natisnite letak hiše
Taja
Zahtevajte informativno ponudbo
Konstrukcija
Tip hiše
Mansardna
Skupna bivalna površina
130,90 m
2
Skupna površina pritličja
85 m
2
Skupna površina nadstropja
m
2
Skupna površina mansarde
45,86 m
2
Skupna površina dodatnih prostorov
m
2
Zunanje dimenzije
7,98m X 10,38m
Konstrukcija sten
Standard
Tip strehe
dvokapnica
Naklon strehe
38,00
°
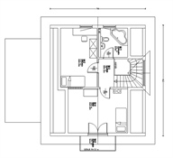
Tloris
Pritličje
Dnevni prostor z jedilnico:
27,60 m
2
Kuhinja:
10 m
2
Spalnica:
10,40 m
2
Kopalnica:
3,50 m
2
Hodnik:
7,67 m
2
Vhod:
4,80 m
2
Pokrita terasa:
21 m
2
Skupaj:
85 m
2
Nadstropje
Skupaj:
m
2
Mansarda
Spalnica:
15,12 m
2
Soba 2:
18,40 m
2
Kopalnica:
5,54 m
2
Galerija:
3,05 m
2
Balkon:
3,75 m
2
Skupaj:
45,86 m
2
Dodatni prostori
Skupaj:
m
2
Javusnik.si
Montažne hiše
Mansardne montažne hiše
Pritlične montažne hiše
Nadstropne montažne hiše
Brunarice
Ostali objekti
Konstrukcija
Gradnja
Prednosti
O podjetju
Konfigurator
Bivalna površina
Najdi hišo
Najdi hišo
Oglejte si tudi...
Nika
Zvonka
Deja
Bazenska hiša
Amadeja
Vesna
Mara
Jožica
Adaptacija hiše z montažno mansardo
Ana
Montažne hiše Javušnik
Vaš sanjski dom.
https://www.iapac.to/
patek phillippe replica watch
Brezplačen katalog
Zagotovite si svoj izvod kataloga montažnih hiš Javušnik.