Montažna hiša Vila

Vila
Delite z ostalimi:
Fotografija:

"Nizkoenergijska montažna hiša prilagojena željam kupca, z možnostjo preureditve v dvostanovanjski objekt."

Hiša prilagojena željam kupca z mogočnim videzom. Velikost skupne bivalne površine omogoča družini udobno bivanje, hkrati pa lahko nudi tudi velike pisarniške prostore. Možno jo je preurediti tudi v dvostanovanjski objekt.

Velikost in postavitev sten se lahko po želji prilagodi, hkrati pa ohrani videz Montažne hiše Vila
  • Tip hiše
    Mansardna
  • Skupna bivalna površina
    183,38 m2
  • Skupna površina pritličja
    91,00 m2
  • Skupna površina nadstropja
    m2
  • Skupna površina mansarde
    92,38 m2
  • Skupna površina dodatnih prostorov
    56,42 m2
  • Zunanje dimenzije
    12,48m X 13,67m
  • Konstrukcija sten
    Javušnik
  • Tip strehe
    kombinacije dvokapnice, trokapnice in frčade, opečna kritina
  • Naklon strehe
    22,00
    °
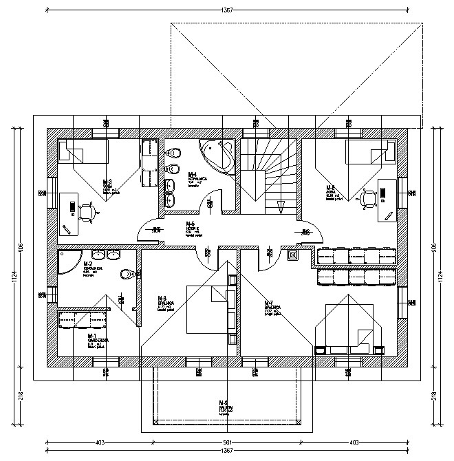
Tloris

Pritličje

Dnevni prostor: 19,23 m2
Kuhinja: 9,89 m2
Jedilnica: 17,38 m2
Soba: 14,50 m2
Kopalnica: 3,72 m2
Predprostor: 17,30 m2
Kurilnica: 8,98 m2
Skupaj: 91,00 m2

Nadstropje

Skupaj: m2

Mansarda

Soba 1: 15,18 m2
Soba 2: 16,59 m2
Soba 3: 14,51 m2
Soba 4: 21,47 m2
Kopalnica 1: 7,26 m2
Kopalnica 2: 6,39 m2
Garderoba: 5,05 m2
Hodnik: 5,93 m2
Skupaj: 92,38 m2

Dodatni prostori

Terasa: 12,00 m2
Garaža: 27,42 m2
Nadstrešek: 5,00 m2
Balkon:  12,00 m2
Skupaj: 56,42 m2

Konfigurator

Oglejte si tudi...

Montažne hiše Javušnik

Vaš sanjski dom.

Brezplačen katalog

Zagotovite si svoj izvod kataloga montažnih hiš Javušnik.